本文へスキップ
熊本の不動産情報 住宅・マンション・土地のご相談はラウンドプランへ
ラウンドプラン
電話でのお問い合わせは
096-331-3260
〒861-8039 熊本県熊本市東区長嶺南6丁目21-2
売倉庫事務所 第 1 空港線沿い
detail
熊本市 東区 小山町
物件写真
外観
案内図
公図
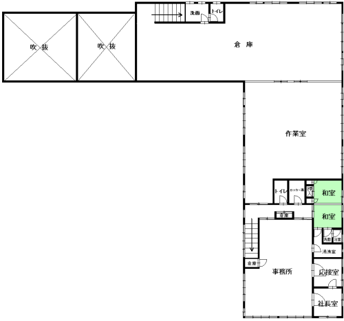
間取り図1F
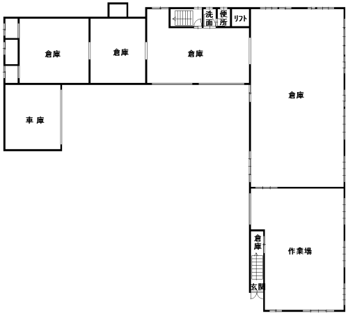
間取り図2F
社長室
応接室
事務所
事務
1
事務所2
作業室
作業室2
西側車庫
倉庫
倉庫
倉庫2
倉庫内
洗面
トイレ
物件概要
このページの先頭へ
ナビゲーション
top page
トップページ
real estate
ご挨拶
real estate
賃貸物件一覧
real estate
売買物件一覧
company
会社案内
access
アクセス
バナースペース
ペットと暮らせる物件
別荘・リゾート・セカンドハウス
注目物件情報